恭喜北京城市副中心芙蓉小学海绵改造工程
荣获第十届园冶杯专业奖最佳人气奖
项目名称 北京城市副中心芙蓉小学海绵改造工程
项目位置 北京市通州区
项目面积 22959㎡
业主单位 北京北控建工两河水环境治理有限责任公司
设计单位 瓦地工程设计咨询(北京)有限公司、南京市市政设计院
施工单位 北京建工土木工程有限公司
设计时间 2018.06.01-2019.07.01
项目概况
北京城市副中心是北京新两翼的一翼,将着力打造成为国际一流的和谐宜居之都示范区、新型城镇化示范区、京津冀区域协同发展示范区,未来将形成“蓝绿交织、水城共融、清新明亮”的生态城市格局,形成“两带、一环、一心”的绿色空间结构。以大运河为骨架,依托水网、绿网和路网勾勒出12个民生共享宜居组团,在各组团内部发展社区级别网络结构,构建可呼吸的海绵细胞体和“城市山林”。

△ 城市副中心空间结构规划图
北京市芙蓉小学位于北京城市副中心的宜居组团核心区,副中心作为第二批国家海绵城市建设试点,根据建设整体要求,小学需要按照蓝绿交织的新城副中心整体理念进行建设,目标在于项目的创新型、可推广性以及示范性,并作到生态、教育和文化并重。瓦地设计团队很荣幸参与到副中心的建设过程中,项目于2018年年末开始,会同通州海绵办的专家和北控技术管理团队、北建工施工团队,历经了4个月的精心设计历程和5个月的施工周期,终于使项目初步呈现。

△ 项目区位图

△ 设计平面图

△ 整体效果图
海绵改造
年径流总量控制率达到80%以上
改造现状绿地、不透水铺装、雨水落管等,建设下凹式绿地、雨水花园、生态树池、高位花坛、线性排水沟、地下蓄水模块池等LID措施调蓄雨水,运用多类型透水铺装渗透雨水,利用自然净化湿地技术净化雨水。
年径流污染控制率(SS)大于51%
功能承担“国家十三五水专项” 技术,增加倒置生物滞留池,旋流沉砂器等创新装置,最大化减少径流污染。
雨水资源利用示范
雨水降落至地块内绿地、硬质屋顶、道路、广场铺装等下垫面上,汇集形成地表径流,经LID设施初步净化后收集入回用池供绿化喷灌系统使用。
消除积水点,增强排水能力
增加多处雨水花园及收水设施,收集雨水,利用雨水。

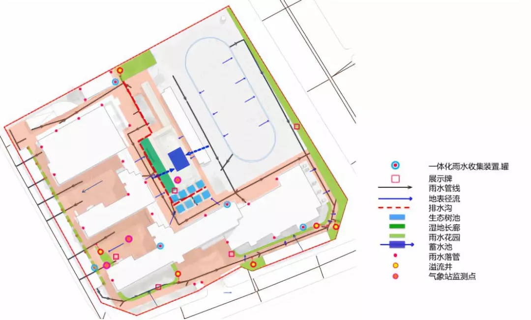
△ LID布置平面
设计说明
本次改造共建设雨水花园1218平方米,台地净化长廊181平方米,地下蓄水池63.5立方米,透水铺装5326平方米。雨水降落至地块内绿地、硬质屋顶、道路、广场铺装等下垫面上,汇集形成地表径流,沿地势坡向雨水进入下凹式绿地、雨水花园、排水沟、湿地长廊等LID措施,经滞、蓄、渗、净、用、排等过程,溢流和泄空排放雨水部分进入地下雨水管网排放系统。

△ 海绵功能+和自然体验分区

△ 主入口建成效果
校区后院的带状绿化用地是重要的景观节点,此处将小农夫菜园和雨水花园一体化设计,辅以排水暗沟、雨水收集罐的排水收水措施,实现景观功能、生态功能、教育功能的深入结合。学生于这里亲近自然,学习种植蔬菜和使用雨水回用罐,在劳动中体会到收获的乐趣以及初步感受到人和大地的关系定位。

△ 中心花园俯瞰效果

△ 台地净水长廊示意图

△ 台地净水长廊示意图

△ 台地净水长廊示意图
台地净水长廊工艺上选择串联多级型潜流滤池,以水生、湿生植物打造休闲的景观水景、突出湿地生态效果,平时负责对地下蓄水池中储存雨水进行循环净化。

△ 净水台地建成效果

△ 末级净化展示塘-荷花池呼应“思汇芙蓉,出于清水,秀之世界”的学校文化
△ 净水台地出水口

△ 净水台地建成效果

△ 海绵庭院建成效果

△ 雨水花园建成效果

△ 小农夫花园建成效果

△ 小农夫花园建成效果
本项目是北京副中心第一个实现了海绵+创新教育的模式落地的设计,使学生充分体验生态科技和文化,与水进行互动,将海绵监测、小气象站、开心农场、湿地水轴和小学教育结合起来,寓教于乐,实现了树立北京市生态海绵校园样板的需求。
工程实施后,学校开展了众多受好评的活动,比如“海绵大使”评选、增强学生对海绵生态、湿地水生境、雨水收集罐等的体验,并力求以后校内海绵设施由学生自行维护管理。
责编/排版:YG_G



