欢迎进入《中国给水排水》直播间
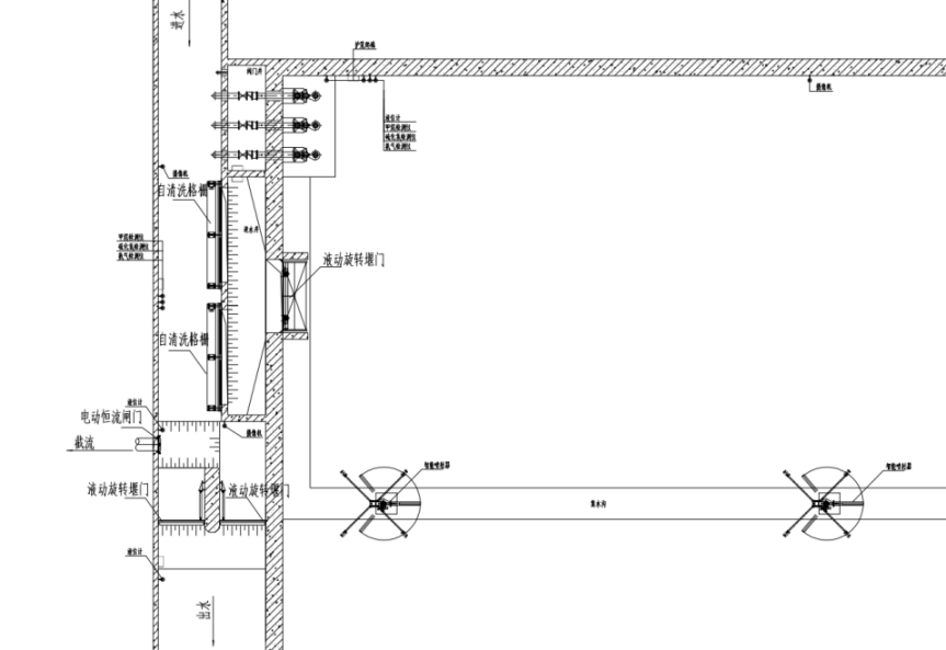
直播交流 扫码二维码加入《中国给水排水》直播交流群,获得更多资讯。 报告主题 德国截流井的核心设计理念为“恒截流,堰溢流”,即在截流井的设计运行中,截流端用恒流器精确截流、溢流端用溢流堰清污分流,从而在保证管网精确运行的同时,最大限度地实现清污分流、降低溢流污染。 在截流井的截流端运用恒流器精确控制去往污水处理厂的截流量,使污水处理厂进水流量恒定可控,每个片区截流后进入截流干管的流量均进行了精确分配,实现管网的精细化运行和管理。 图1:德国标准规定恒流器精确控制截流量 图2:德国污水处理厂各片区流量精确分配 同时,在截流井中将溢流作为一种处理手段,利用溢流堰将雨污混合水的上清液溢流排河,不仅实现时间次序上的清污分流,也实现空间高度上的清污分流。 图3:采用溢流堰将上清液溢流排河(左)和采用闸门浊水直接排河(右)对比图 德国“恒截流,堰溢流”的核心技术理念已成功应用于福州、萍乡、九江、玉溪等诸多项目,助力海绵城市建设和水环境治理,取得了显著的效果。 图4:玉溪海绵城市试点区大河以北海绵工程 直播时间 2021年1月27日(周三) 14:00—16:00 主持人 王领全《中国给水排水》杂志副主编 主讲人 陈亮 北京清源华建环境科技有限公司联合创始人,高级工程师,注册公用设备工程师(给水排水),注册公用设备工程师(暖通空调)。中国水协海绵城市建设专委会委员,城镇水环境专委会委员。主要研究方向为海绵城市建设,水环境治理,内涝防治。 观看回放 1、关注《中国给水排水》官方微信 CNWW1985 2、点击首页右下角云直播,即可观看直播及直播回放 直播交流 扫码二维码加入《中国给水排水》直播交流群,获得更多资讯。 观看直播 方式一:可使用微信扫描二维码观看直播 方式二:点击网址链接观看直播 https://appma47gbbt2465.h5.xiaoeknow.com/v1/course/alive/l_600a2f1ee4b0d0af0d8c2ff1?type=2

恒截流,堰溢流——德国截流井精确截流清污分流理念及中国实践










