火神山医院地上总建筑面积25000平方米,局部地上2层。施工单位是由中建三局、武汉建工、武汉市政和汉阳市政共同建设的。在施工期间,所有施工单位都是两班倒,白加黑,997工作模式,有4200余名工人,1000台大型机械,1650间箱式板房,1500个门樘,混凝土1.4万方,HDPE膜10万平方米,分包单位上百家。
火神山医院采用集装箱式箱体活动板房进行模块化拼接,板房形成标准单元。这几年国家大力提倡装配式建筑,不同于小汤山,小汤山建设已经是17年前的事,当时我们国家的建筑技术与今天相比有很大差距,小汤山可供选择的建筑材料没有现在这么多,工业化程度也没有现在高,小汤山当时基本上采用轻钢骨架与复合板的形式来搭建。
笔者汇总了一下火神山医院的给排水公开设计图纸、网络资料以及施工情况,简要解析火神山医院给排水系统设计要点。
武汉加油
1选址及风向考虑
因其特殊性,在选址上,传染病医院不宜设置在人口密集的居住或活动区域,靠近下风口。武汉市以东北风为主导风向,火神山医院的选址西南向水,处于城市的下风带,这样的选址对城市污染的可能性最低。

图片来源:百度图片
2给水设计
火神山医院最高日用水量880m3/d,最大时用水量92m3/h。给水管网采用环状供水管网,供水较枝状供水具有更高的可靠性和安全性。
自来水接自医院西侧DN800的市政给水管网,水压0.2-0.25MPa。医院病房为双层结构,按《室外给水设计规范》最远服务点的服务水头要求至少达到12米。考虑远端供水和消防的安全性,根据管网平差计算和校核可以评估服务水压是否足够。这部分的计算成果在图纸上无法得到体现,但根据医院占地尺寸估算水损,水压的安全余量和保证程度存在不足风险。
基于这方面的考虑,给水设计考虑了预留无负压设备接口,进一步稳定管网水压。在水压不足,低于设定值时,自动为管网输水增压。另外,在规范允许的范围内,为了进一步保证给水水质的安全性,确保管网余氯含量,防止细菌和病毒在管道中滋生和传播,设计考虑了给水加氯设备接口。

来源:中信设计公开图纸
给水设计除了在水量、水压、水质的稳定性和安全性考虑较为周全之外,在管径、管材上的考虑也较为合理,环状主干管DN250、干管DN100,配水支管和室内管径介于DN20~DN80,没有明显不合理的地方。室外管材采用HDPE材质,室内PPR材质也是较为常规而合理的配置。
3雨水设计
火神山医院采用雨污分流制。由于火神山医院作为传染病医院的定位,以及新冠病毒的高传染性,雨水不能按照一般雨水设计的“高水高排、低水低排、就近排放”的原则收集排放,而是考虑了集中收集和消毒处理纳管排放的安全措施。雨水根据高差布置,整体分为东(右)西(左)两片。

底图来源:中信设计公开图纸
设计采用雨水重现期为3年,按照《室外排水设计规范》,特大型城市非中心城区的雨水管渠设计重现期为2~3年,考虑到火神山医院防疫的重要性和淹水污染扩散的安全性,本设计的雨水重现期选用是合理的。

来源:《室外排水设计规范》
(GB50014-2006)
设计雨水最小管径DN300,最大DN1000,管材为PE双壁波纹管,坡度为3‰。管径设计和管材选用较为合理,坡度符合《室外排水设计规范》的要求。

来源:《室外排水设计规范》
(GB50014-2006)
考虑到病毒可能通过雨水漫流/溢流传播,设计考虑了雨水调蓄池和消毒措施。图纸上体现了雨水调蓄池的位置和尺寸,调蓄池分为3个池体,每池尺寸为L×W×H=20×25×2.5m。
总说明中提及雨水消毒后纳管排入市政管道,在设计图纸中缺少相关的消毒设计和具体说明。此消毒应该是与污水处理的消毒一体考虑,但在污水处理设计中未明确提及和体现相关内容,暂留存疑。
4污水设计
火神山医院的污水收集和处理,除了通常考虑的生活、生产污废水之外,还考虑了空调冷凝水潜在的污染问题。污水收集管道流向布局与雨水类似,也是根据高程布置,整体分为东(右)西(左)两片。管材为PE双臂波纹管,最小接户管径De110,最小室外管道管径De300,最大De400,3‰的坡度符合规范要求。

底图来源:中信设计公开图纸
污水不考虑室内黑灰分流,进行综合收集。空调冷凝水单独一路收集管道,避免与污水并管收集可能存在的反向污染问题。东部片区的污水和空调冷凝水通过各自独立收集管道最终流入同一个接触消毒池,西部片区亦然。
值得探讨的一点在于,出于更安全可靠的角度考虑,东西片区的污水汇总进同一个消毒接触池,而空调冷凝水汇总共同进入另一个消毒接触池,可能会是更好的选择。当然两片区间末端高程的衔接以及设备型号和配置的选择需要更多的考虑,一定程度上会增加工作的复杂程度。
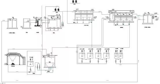
根据北极星环保网的报道,污水处理站于2月2日开始调试,截至2月6日,已处理废水1250m3。污水设计日处理量达800~1000m3,污废水经过接触消毒池初步消毒,经配水井均匀配水后,进入化粪池,之后经MBBR流化床生物膜反应器生化处理、沉淀和消毒后,纳管排入市政污水管网。

来源:中信设计公开图纸

图片来源:北极星环保网
备注:埋入地下的污水处理设施,其中绿色区域是预处理消毒池(与图纸显示的方形池设计有出入),白色区域是化粪池,黑色区域是雨水池和污水池。

生化池和二次消毒池
(图片来源:北极星环保网)
化粪池的清掏周期180天,符合设计规范的要求,但考虑到病毒的传染性,应尽量减少清掏频率和接触机会,设计为360天的清掏周期可能更为合理。
前端接触消毒池和末端消毒池2均要求考虑余氯脱除,笔者认为前端消毒考虑余氯脱除是合理的,但末端消毒的脱氯则有待商榷。
原因在于,前端接触消毒池要达到消毒灭杀的作用,其出口总余氯量要达到6.5~10mg/L的水平,但这种浓度的总余氯进入化粪池,会对化粪池内的生化反应产生破坏作用,并相应对后面整个系统的正常运行带来不利影响。因此接触消毒池在流入化粪池之前,必须考虑余氯的脱除措施和配置。而生化之后的出水尽管要排入市政管道并流向城镇污水处理厂处理,但由于医疗污水排放的距离长,余氯会沿程消耗,加上其他污水的汇流稀释,最终进入城镇污水处理厂不会产生任何危害。另外,一定量的余氯在沿程消耗的同时,会抑制排水管道内的生化反应及臭气产生,其作用是良性的。
另外需要注明的一点在于,排入市政管网不考虑脱氯并不存在排放标准的障碍,因为排放标准的总余氯指标只针对直接排入水体的要求。

来源:中信设计公开图纸

来源:《医疗机构水污染物排放标准》
(GB 18466-2005)
考虑到任务重,工期紧,污水处理设备全部为一体化预制设备,停留时间的设计放了足够的余量。除了接触消毒池的设计缺失,消毒池1的服务对象不明确之外,总体处理工艺上没有明显错误,出水达到纳管标准有比较高的保障。
污水处理工艺方面值得商榷的一点在于,消毒采用液氯消毒,对于火神山医院这样的临近敏感区域,在安全操作上有较大隐患。另外,污水处理的消毒药剂的选用最好与给水的消毒补充,医院的日常消毒所用药剂统筹考虑。显然用液氯除了安全性的问题之外,也缺少一体化的整体综合考虑。
新冠病毒的传染途径并不非常明确,应考虑切断更多的可能传播途径,并在污水处理环节予以更多关注和考虑。从流程图上、医疗机构污水的设计规范要求,以及一体化设备的通常构造来讲,污水处理的单元处理设施都应该考虑了加盖的问题,但气体仅靠加盖掩盖有诸多操作安全和传染扩散的潜在隐患。整个污水处理,包括污泥房都应该考虑气体的收集和消毒处理问题。根据北极星环保网的报道,污水处理站的臭气将经收集消毒后排放。由于该部分设计图纸暂缺,本文略过相关分析。
工艺探讨
在分析的最后,笔者想对设计采用的MBBR工艺谈一点个人看法,抛砖引玉,欢迎大家讨论。
MBBR的本意是想通过悬浮填料的投加,附着生长微生物,从而增加反应池的污泥浓度,并且附着微生物的填料还要能够实现上下翻滚,让污泥与污水有更多的接触机会。
如果增加污泥浓度,实现更高的污泥负荷,生物降解所需的溶解氧体积浓度需要增加,也就是供气强度增加。供气强度增加的同时,对填料的生物膜物理剪切作用就越大,反过来又越不利于生物膜的附着生长。所以这里必然有一个供气强度与附着生物量的平衡,这个平衡点在哪里?
在生物膜和填料的共同重量,以及供气冲刷的共同作用下,实现填料的上下翻滚混合运动,除了重力平衡关系难以掌握之外,在竖向上甚至局部侧面方向上,气体冲刷生物膜的剪切强度也是变化的,能够稳定形成的生物膜厚度恐怕非常有限而脆弱。
笔者接触的MBBR成功的案例不多,可能限于其微观工况过于复杂,最终呈现出理想丰满、现实骨感的无奈效果。
01参考的设计图纸

设计背后的故事
(资料来源:中国建筑学会公众号)
1月23日13点06分,武汉市城乡建设局第一时间致函中国中元国际工程有限公司,请求对武汉市建设新型冠状病毒肺炎应急医院进行支持。中国中元有过类似成功的经验,其顾问总建筑师黄锡璆博士带领的中元医疗团队曾临危受命,在7天内完成“小汤山医院”设计建设任务。
收到函件后,中国中元迅速召开支援武汉建设应急医院协调会议,中国中元负责人、技术总工程师以及医疗相关各院院长悉数参加。经过讨论,会议形成了一系列决定:立刻整理小汤山应急非典医院图纸及相关资料发送给武汉建设局,并将当年因条件受限,可以进一步完善的建议也一并提供给对方。
1月23日14点22分,接到求助函一个小时后,修订完善的小汤山医院图纸送达对方。
中国中元还迅速成立了由公司负责人和相关部门负责人组成的应急指挥部和由2003年设计建设小汤山应急非典医院的各专业设计负责人组成的技术支持专家组,为武汉市建设局及具体设计单位随时提供技术咨询和建议。
使命并未结束。
1月23日18点43分,应急医院的设计单位中信设计院来电请求技术支援,中国中元各专业迅速建立直通联系通道,医疗专家组与对方设计人员直接对接,保证24小时为中信设计院提供技术支持。

请求支援函(来源:中国建筑学会公众号)

黄锡璆大师组织项目协调会
(来源:中国建筑学会公众号)
年近八旬黄锡璆此次面对凶险的疫情,出于社会责任和职业敏感,他第一时间向组织递交了请战书,他在请战书中写道:“与其他年轻同事相比,家中牵挂少,具有‘非典’小汤山实战经验。”他表示愿与大家站在一起,共克时艰。只要祖国需要,随时可以出发。
1月24日(除夕)黄锡璆大师手写了武汉应急应急医院的建议。


黄锡璆大师的请战书与手写建议书
(来源:中国建筑学会公众号)
以上是关于火神山医院给排水相关的设计,时间仓促,难免有疏漏或错误,期待各位留言指正。
感谢可昆建筑张强提供的基础资料和指导!



