污水厂不停水应急达标改造工程设计及实施
2024-01-10 13:49
来源:《中国给水排水》
作者: 顾雪锋,吴鹏
分享:
摘要:污水厂不停水应急达标改造工程设计及实施
摘要:针对山西省某污水处理厂现状出水达标率低、处理能力不足等问题,分析认为,影响出水达标的因素除水量波动大之外,进水COD、BOD5、SS、NH3-N、TN和TP等主要污染物浓度远超设计水质是关键因素。为此,在不停水、不扩建用地等情况下进行了不停水应急达标工艺设计,并分析了改造后的实际处理效果,对类似污水处理厂的提标改造具有实际参考价值。

山西某污水处理厂总规模12.0×104m3/d,分三期建设,一期工程于2005年建设,规模7.5×104m3/d,处理后尾水5.0×104m3/d回用,剩余2.5×104m3/d排入河道;一期提标工程于2009年建设,出水水质由《城镇污水处理厂污染物排放标准》(GB 18918—2002)的一级B标准提升至一级A标准。二期扩建工程于2013年建设,建设规模4.5×104m3/d,处理后尾水排入河道。现状污水处理厂工艺流程如下:① 一期工程。粗格栅及提升泵站→细格栅及旋流沉砂池→奥贝尔氧化沟→二沉池→BAF(反硝化+硝化)→紫外线消毒池→絮凝反应→翻板滤池→外排或回用。② 二期工程。粗格栅及提升泵站→细格栅及旋流沉砂池→卡鲁塞尔氧化沟→二沉池→紫外线消毒池→絮凝反应→高效澄清→翻板滤池→外排或回用。③ 污泥处理。剩余污泥+化学污泥→污泥储池→带式压滤机→污泥外运(80%含水率)。自2018年至今,该厂污水处理量逐年增多,平均水量已超过10.0×104m3/d,峰值水量超过12.2×104m3/d,因此考虑扩建3.5×104m3/d。根据山西省《污水综合排放标准》(DB 14/1928—2019,以下简称三项Ⅴ类),该厂需进行扩容和提标改造,扩建后总处理规模达到15.5×104m3/d,处理后出水标准由一级A提升至三项Ⅴ类要求。
该污水处理厂进水主要为生活污水和少量工业废水。表1为2020年1月—2021年4月该厂实际进、出水水质情况。
从表1可以看出,实际进水水质远超原设计值,尤其是COD、SS、NH3-N、TN和TP等指标。按照山西省地方三项Ⅴ类出水标准要求,实际出水对应新标准达标率较低,除COD外,SS、TN超标较为严重,NH3-N、TP、BOD5也有不同程度超标。
该污水处理厂实际运行中存在处理设施能力不足的问题。一期采用厌氧池+奥贝尔氧化沟工艺,共3组,设计每组处理规模2.5×104m3/d。设计厌氧区停留时间1.10h、缺氧区停留时间6.07h、好氧区停留时间10.61h,生化反应区总停留时间为17.78h,水深4.0m。奥贝尔氧化沟曝气采用转碟曝气机,曝气效率较低,整体运行能耗较高。受表曝设备的限制,氧化沟内存在流速不均及污泥沉积等问题。同时转碟曝气设备轴承磨损严重,运行不正常。表2为实际采样分析的奥贝尔氧化沟中不同位置的溶解氧(DO)值,从实测DO值结果来看,缺氧区和好氧区分区不明显,说明从外沟到中沟存在短流现象,从而造成反硝化脱氮效率很低,出水总氮超标严重。
二期卡鲁塞尔氧化沟停留时间约16.2h,水深6.0m,其中厌氧区2.0h、缺氧区3.0h、好氧区11.2h。实际进水总氮95%覆盖率时达到70mg/L,超过原设计值约40%,氧化沟缺氧区停留时间不足,出水总氮难以稳定达标。
二期扩建时二沉池采用平流式,平均表面负荷为1.26m3/(m2·h),最大表面负荷为1.64m3/(m2·h),设计表面负荷偏高。实际运行中监测卡鲁塞尔氧化沟出水端的SV30高达86%~96%,对应污泥体积指数(SVI)为121~158 mL/g,污泥沉降性能较差。同时,高效澄清池的平均表面负荷为15.29m3/(m2·h),最大表面负荷达到19.87m3/(m2·h),已超过《室外排水设计标准》(GB 50014—2021)。因此,污水处理厂出水的SS达标率低。由于奥贝尔氧化沟转碟曝气机轴承磨损和腐蚀严重,导致有时运行不正常。絮凝沉淀池的混凝区投加药剂后混合反应较差,表面存在少量浮渣,絮凝反应池内搅拌器的机械密封磨损导致漏油,设备运行状况不良。另外,一期翻板滤池有一组停运,一期BAF滤池运行不正常,现已停运。污泥处理系统一台带压机损坏,加药系统运行不正常。该污水处理厂日均处理水量已超过10.0×104m3/d,在扩容提标改造施工期间,出水水质要达到三项Ⅴ类标准。厂内建设用地紧张,无扩地改造的条件,而污水处理厂已满负荷运行,也不存在分组停运改造的条件。同时,项目建设工期紧张,临时应急达标改造工期也包含在项目总工期内。因此,三项Ⅴ类改造需要在尽可能短的时间内完成不停水施工,实施难度很大。
由于二期平流式二沉池、高效澄清池设计表面负荷偏高、处理能力受限,因此,结合现状污水处理厂的实际污水量和处理能力,拟将全厂设计规模由12.0×104m3/d降至10.5×104m3/d。考虑到项目建设工期约2年,经复核现状一期和二期调整处理规模后能满足现状处理水质标准。考虑到一、二期氧化沟处理能力不足,拟对一、二期氧化沟进行综合改造。① 处理水量分配。结合各处理单元的实际处理能力,同时减少应急改造工程量,考虑将一期氧化沟(单组)由2.5×104m3/d调整为2.3×104m3/d运行,二期氧化沟由4.5×104m3/d调整为3.6×104m3/d运行,总处理规模为10.5×104m3/d。② 调整氧化沟的曝气方式。曝气方式由表面曝气改为表面曝气与底部曝气相结合的方式。底部曝气的风机考虑利旧,调用已停用BAF滤池配套的风机,风机类型为罗茨鼓风机,共4台,其中3台风量为80m3/min、风压为0.07MPa、功率为160kW,另外1台风量为50m3/min、风压为0.07MPa、功率为90kW。考虑4台风机全开,气水比约4∶1,结合一期转碟曝气器、二期转盘曝气器一起使用,曝气量基本可以满足要求。由于一期、二期氧化沟水深不一致,在二期风管末端增加减压阀,以满足一期供气风压的要求。③ 调整氧化沟分区。将氧化沟设计或改造成脱氮除磷工艺,关键是要按照生物同步脱氮除磷工艺确定各沟渠相应的参数、功能分区和操作方式的选择,通过人为设置厌氧区、缺氧区和好氧区,使之变成具有脱氮除磷功能的氧化沟。因此,考虑将一期氧化沟外沟改为缺氧区和交替区,中沟和内沟作为好氧区。改变原水流方向,封堵外沟到中沟可能造成短流的进水孔,增加不停水安装的推流器及搅拌器。二期氧化沟减量至3.6×104m3/d运行,总停留时间为20.25h,厌氧区为2.5h,缺氧区为3.75h,好氧区为14.0h。因缺氧段容积稍显不足,故拟将好氧区约4.5h池容调整为缺氧区,增加推流器,缺氧段停留时间调增为约8.25h。④ 增加内回流。增加硝化液回流,设计回流比为350%。
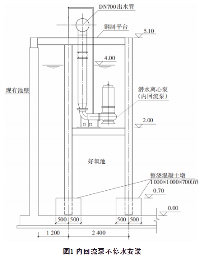
因该污水处理厂已处在正常运行期,不具备停水改造的条件,故本次应急达标改造需采用不停水施工。① 底部曝气器采用可提升曝气器,近期作为应急工程使用,满足不停水施工要求,待具备停水改造条件后,将曝气器作为永久工程固定安装,拆除可提升支架。② 潜水搅拌器、潜水推进器选用可不停水施工的形式。
除上述应急改造措施外,按永久工程要求采购带式脱水机及加药系统,满足应急达标要求。同时增加临时碳源、硝化菌剂、反硝化菌剂、微纳米絮凝剂等投加系统,进一步确保出水水质达标。
该改造工程于2021年6月开始实施,经安装、调试,8月13日正式完成改造,总投资超过700万元。截至2021年10月底,该污水处理厂实际运行对主要污染物(COD、BOD5、SS、NH3-N、TN和TP)的去除效果如表4、图2所示。


图2 实际进、出水COD、BOD5、SS、NH3-N、TN、TP
从实际运行数据来看,受山西夏季降雨量较多的影响,进水水质较去年有所下降,但出水水质在临时应急改造工程完成后,通过精细化运营,基本上能稳定达标,未发生出水超标的情况,达到了预期目标。
对山西省某污水处理厂实际运行中存在的主要问题进行了分析,提出了不停水技术改造方案,实施改造后取得了预期的效果,对类似污水处理厂提标改造具有实际借鉴作用。① 提标改造难点和关键点分析。对于提标改造类项目,应对现状设施运行情况进行调查分析,复核现状处理构筑物的能力及关键出水指标,梳理清楚提标改造的难点和关键点。② 临时工程与永久工程的结合。建议在充分论证现有处理设施能力与处理规模匹配的前提下,确定临时工程的处理规模。充分利用已有设施和设备,在满足出水达标要求的条件下,减少改造工程量,降低工程投资。③ 生化处理系统的挖潜改造。通过将氧化沟表面曝气改为底部曝气、调整氧化沟分区、增加内回流等措施,提高曝气效率,强化硝化和反硝化反应,从而提高氧化沟的脱氮除磷效果。④ 制定合理的不停水施工方案。采用可提升式曝气器、可提升式潜水搅拌器及潜水推进器,内回流泵采用高支架安装等形式,可以满足不停水施工要求。
本文的完整版刊登在《中国给水排水》2023年第6期,作者及单位如下:
(北控<杭州>生态环境投资有限公司,浙江 杭州 311100)
顾雪锋,吴鹏.污水厂不停水应急达标改造工程设计及实施[J].中国给水排水,2023,39(6):103-107.
GU Xuefeng,WU Peng.Design and construction of emergency plan for compliance of new effluent criteria under normal operation[J].China Water & Wastewater,2023,39(6):103-107(in Chinese).
《中国给水排水》版权与免责声明:
①凡本网注明“来源:《中国给水排水》”的所有作品,版权归《中国给水排水》杂志社所有,未经本网授权任何单位和个人不得转载、摘编或利用其它方式使用上述作品,违反上述声明者,本网将追究其相关法律责任。
②凡本网注明“来源:XXX(非《中国给水排水》)”的作品,均转载自其它媒体,仅供分享不作商业用途,并不代表本网赞同其观点和对其真实性负责。如原版权所有者不同意转载,请联系我们(022-27835520),我们会立即删除,谢谢!